Modern kitchen with wooden cabinets, a black backsplash, a marble island, and a dining table with black chairs, decorated with vases and a flower arrangement.

PROJECT 07

Pakenham

Building design for a five-bedroom family home, embracing rustic charm and robust construction. Natural materials and thoughtful detailing create a warm, enduring residence grounded in its surroundings.

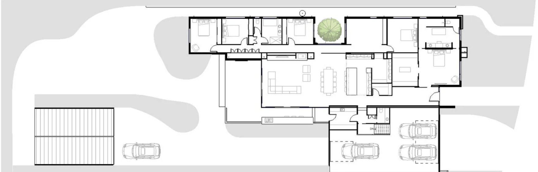
This is the client’s second home, and the design brief reflected lessons learned from past experiences—ticking every box. Top of the list was ample storage for cars and household items. Situated on a generous 1500m² block, the design allowed space for a dream shed at the rear, while still comfortably accommodating three cars in the garage.

The client also wanted a large, open-plan living space and a spacious master suite, complete with a walk-in robe and ensuite discreetly tucked away for privacy. The children's wing was designed to be easily closed off from the rest of the home, offering flexibility as the family grows—or when the clients eventually become empty nesters and live primarily in one section of the house.

Floor plan of a house showing multiple bedrooms, bathrooms, a large open-concept kitchen and living area, and a garage with parking spaces.

Key architectural features include exposed steel elements in the main living area and a striking blade wall that runs from the entry through to the hallway, showcasing the skillion roof and soaring ceilings. This home blends bold design with practical function—ideal for entertaining, raising a family, and enjoying for years to come.

Digital rendering of a modern house with a sloped roof, dark exterior walls, large windows, and landscaped front yard with grass and ornamental grasses.
NEXT PROJECT | PROJECT 08 | HAMPTON